



















Surface
96 m²
Pièces
3
Chambres
4
Prix d'acquisition
349 000 €
3 635 €/m²
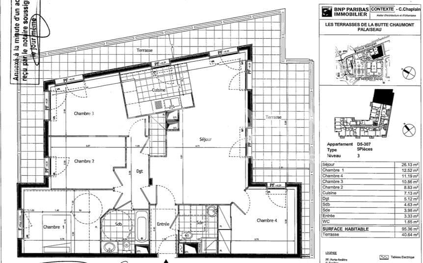
Découvrez ce superbe appartement F5 au 3ème et dernier étage d'une résidence de 2014, offrant un cadre de vie confortable et moderne. Avec sa conception lumineuse et ses espaces généreux, cet appartement saura vous séduire dès le premier regard ! Caractéristiques Principales : - Salon spacieux avec cuisine ouverte aménagée et équipée, ouvrant sur une terrasse ensoleillée de 40m², idéale pour profiter des beaux jours et des repas en plein air en famille ou entre amis. - Quatre chambres, dont une avec placard intégré et accès direct à la terrasse, offrant des espaces de repos confortables et fonctionnels pour toute la famille. - Une salle de bains moderne, une salle d'eau avec WC et des WC séparés, offrant confort et praticité au quotidien. - Place de parking en sous-sol pour garantir votre tranquillité et faciliter votre quotidien. Environnement Idéal : - Quartier dynamique avec petits commerces à proximité, offrant une vie de quartier agréable et pratique. - Multiples options de transports en commun disponibles : bus, RER B à la gare de Palaiseau ou de Massy Palaiseau, pour faciliter vos déplacements au quotidien. - Proximité du centre médical Chaumont et du Centre commercial Villebon 2 avec sa galerie commerciale et ses magasins de grandes enseignes, pour répondre à tous vos besoins en termes de santé et de shopping. Ne manquez pas cette opportunité exclusive de découvrir ce magnifique appartement avec NESTENN. Contactez-nous dès aujourd'hui pour organiser une visite ! Les informations sur les risques auxquels ce bien est exposé sont disponibles sur le site Géorisques : www.georisques.gouv.fr
Notre algorithme analyse l'annonce pour estimer l'ampleur des travaux à prévoir.
Termes liés à la rénovation détectés dans l'annonce
Basé sur le DPE (Diagnostic de Performance Énergétique)
DPE absent, peu de photos ou description courte
Termes architecturaux régionaux (longère, mas, etc.)
Cette analyse est automatique et indicative. Elle est basée sur le contenu de l'annonce et ne remplace pas un diagnostic professionnel sur place.
Connectez-vous pour utiliser l'analyse IA
Se connecterStatut
Disponible
Classe Énergie
Classe actuelle : D
Classe GES
Classe actuelle : D
Ce bien est classé DPE D — voici ce que vous gagnerez en rénovant
Actuel
Cible
739 €
économie / an
62 €/mois
+3%
plus-value
+10 470 €
157 ans
retour invest.
-98 175 € /10 ans
Estimations basées sur les consommations moyennes par classe DPE et les études Notaires de France sur l'impact du DPE sur les prix.
Chargement de la carte...
Estimation indicative selon le niveau de travaux
Rénovation partielle : électricité, plomberie, isolation
Électricité aux normes, plomberie, isolation, menuiseries, chauffage, salle de bain
750-1050 €/m²
446k €
±3%
475k €
Prix + Travaux + Notaire
Estimation indicative
Basée sur les barèmes moyens de rénovation par zone géographique. Le coût réel dépend de l'état du bien, de l'accessibilité du chantier et des choix de matériaux.
Fourchette calculée : prix/m² × surface × coefficient régional
Renseignez votre profil pour estimer vos aides à la rénovation.
Simulez la réduction d'impôt si vous mettez ce bien en location après rénovation.
Investissement estimé :
349 000 € + 86 400 € travaux = 435 400 €
Économie/an
739 €
62 €/mois
Plus-value estimée
+10 470 €
+3%
Autres biens à rénover en Essonne

Arpajon
249 900 €
Budget total:324k € - 346k €
iad France - Lionnel Gabourg (<span class="importDescriptionDecorator" data-type="phone">06 52 68 44 60</span>) vous propose : A seulement 10 minutes à pied de la gare RER C d'Arpajon, laissez-vous séduire par ce magnifique appartement 4 pièces de 73 m² environ, doté d’une terrasse spectaculaire de 48 m² environ, véritable prolongement de l’espace de vie. Situé au quatrième et dernier étage de cette résidence de standing de 2017, il comprend une entrée, un vaste séjour de 32 m² environ avec cuisine ouverte équipée, trois chambres, placards, salle de bain, WC séparés, et deux places de parking privatives en sous-sol. Un cadre de vie idéal, proche des commerces et des écoles.<br> La présente annonce immobilière vise 1 lot principal situé dans une copropriété formant 133 lots au total ne faisant l'objet d'aucune procédure en cours et d'un montant de charges d’environ 166.25 € par mois (soit 1995 € annuel) déclaré par le vendeur.Honoraires d’agence à la charge du vendeur.Information d'affichage énergétique sur ce bien : classe ENERGIE C indice 79 et classe CLIMAT C indice 14. Les informations sur les risques auxquels ce bien est exposé sont disponibles sur le site Géorisques : www.georisques.gouv.fr. La présente annonce immobilière a été rédigée sous la responsabilité éditoriale de M. Lionnel Gabourg EI (ID 91183), mandataire indépendant en immobilier (sans détention de fonds), agent commercial de la SAS I@D France immatriculé au RSAC de Evry sous le numéro 993253210, titulaire de la carte de démarchage immobilier pour le compte de la société I@D France SAS. Le présent bien est commercialisé dans le cadre d'une délégation de mandat.<br>Retrouvez tous nos biens sur notre site internet. <span class="importDescriptionDecorator" data-url="www.iadfrance.fr" data-type="basicUrl">www.iadfrance.fr</span>

Massy
340 000 €
Budget total:421k € - 443k €
MASSY - dans la résidence Les Florianes ( Rue de Londres / Allée de Madrid) nous proposons à la vente un appartement de 4 pièces, situé au 4ème et dernier étage avec ascenseur d'une résidence récente (2002) . Ce bien offre une surface habitable de 74,80 m², comprenant un séjour lumineux de 21,29 m² exposé sud et est , une cuisine indépendante, aménagée et équipée, ainsi que trois chambres confortables. L'appartement dispose d'une salle de bain, d'un WC séparé, et bénéficie d'un calme appréciable. Vous profiterez également d'une grande terrasse de 24 m² avec une vue dégagée idéale pour vos moments de détente et vos repas d'été en famille. Les fenêtres en PVC double vitrage et les volets roulants garantissent une bonne isolation. Le bien comprend un box double et une place de parking extérieure , ce sont des atouts rare dans le secteur ! La localisation est idéale, proche de nombreuses écoles et à 10 minutes à pied de la future gare de la ligne 18. Ce bien est proposé en exclusivité par l'agence NESTENN Massy

Massy
452 000 €
Budget total:556k € - 585k €
Atlantis, à vendre bel appartement familial doté de deux belles terrasses idéal pour profiter en ce début d'été. il se compose d'une vaste entrée donnant sur le double séjour avec cuisine ouverte entièrement aménagée et équipée et ouvrant sur l'extérieur . Dans la partie nuit, 3 chambres confortables dont une suite parentale, la salle de bains et le wc séparé. possibilité d'acquérir en SUS une autre place de parking. Fonctionnel, lumineux, vous serez séduits par la proximité des commerces, du RER et du TGV. écoles, parc accès autoroutiers tous proches; pour une rentrée sereine, n'hésitez plus contactez nous! Les informations sur les risques auxquels ce bien est exposé sont disponibles sur le site Géorisques : www.georisques.gouv.fr

Massy
375 000 €
Budget total:461k € - 485k €
En exclusivité chez Nestenn, découvrez cet appartement de 78,15 m² situé au coeur de Massy Atlantis; Bel espace de vie idéal pour les familles en recherche de confort et de modernité, vous serez charmé par sa cuisine dinatoire ouverte aménagée et équipée, parfaite pour concocter de bons repas et son séjour spacieux de 24,90 m² ouvrant sur la terrasse et le jardinet. Les chambres sont de bonnes tailles dans un espace "nuit dédié". Grande salle de bains avec coin buanderie, wc séparé. L'appartement, construit en 2010, est en bon état et dispose de volets roulants pour plus de confort. Vous apprécierez également la tranquillité de ce lieu tout en gardant à proximité le RER B Massy Palaiseau, le TGV et la place du Grand Ouest. À l'extérieur, une terrasse de 32,93 m² vous attend pour vos moments de détente. De plus, vous bénéficierez de deux places de parking, d'un accès PMR et d'un sous-sol. La fibre optique est également disponible pour rester connecté. Situé à proximité de nombreux points d'intérêt, cet appartement est idéalement placé près de plusieurs écoles, ainsi que de parcs pour vos promenades. Vous trouverez également des supermarchés, boulangerie restaurants à quelques pas, rendant votre quotidien encore plus agréable. Ne manquez pas cette opportunité unique de vivre dans un cadre moderne et pratique à Massy. Contactez l'agence NESTENN Massy pour organiser une visite dès aujourd'hui ! Les informations sur les risques auxquels ce bien est exposé sont disponibles sur le site Géorisques : www.georisques.gouv.fr