

Appartement à rénover à Saint Hilaire De Riez
Surface
64 m²
Annonces similaires
Autres biens à rénover en Vendée


Surface
64 m²
Autres biens à rénover en Vendée
Pièces
2
Chambres
2
Prix d'acquisition
323 000 €
5 047 €/m²
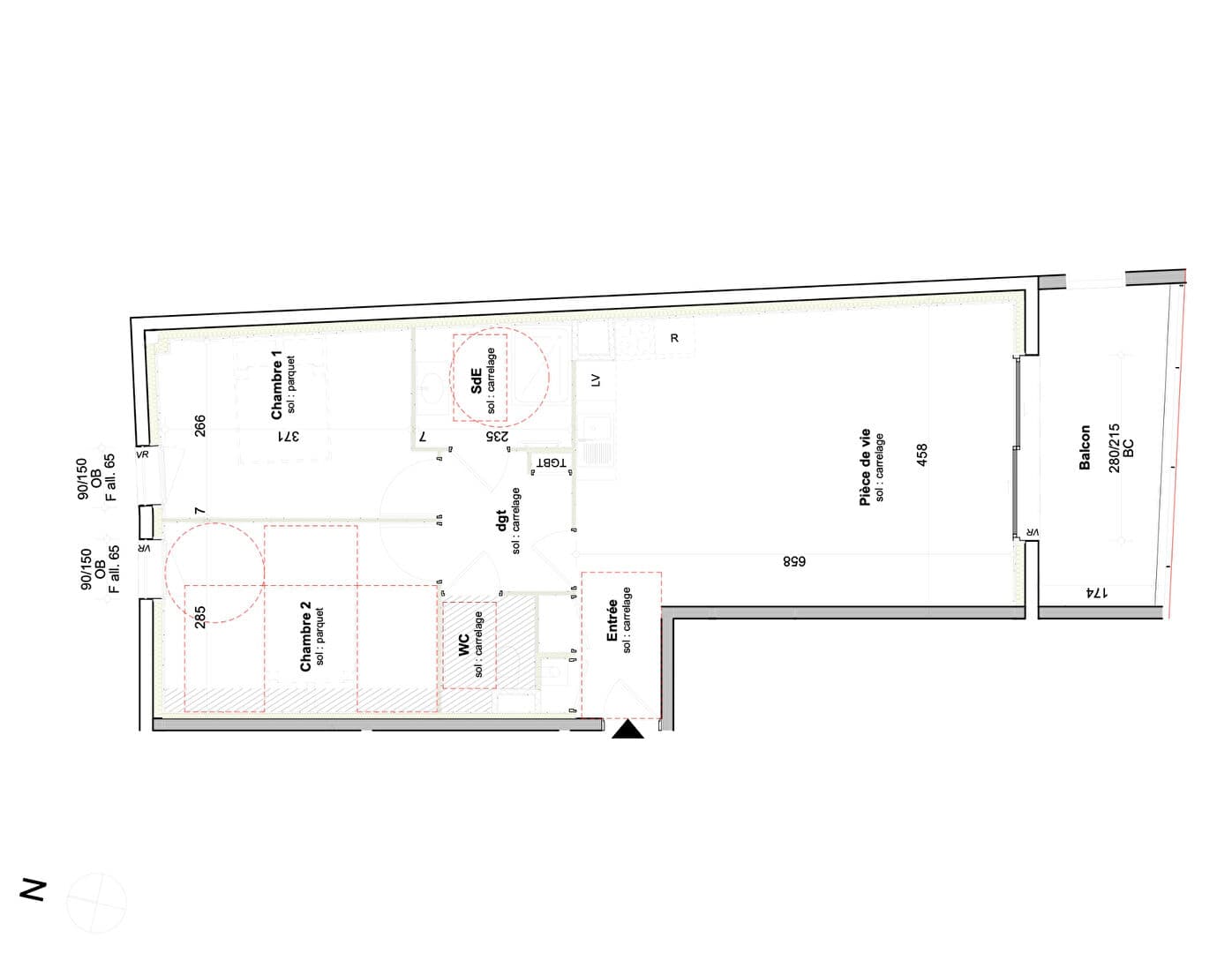
Vos agences Nestenn de Saint Gilles Croix de Vie sont heureuses de vous proposer, cet appartement en VEFA à Saint Hilaire de Riez, proche des commerces, d'une surface de 64m², il comprend un séjour de 28m², une cuisine a aménager, une salle d'eau et un WC, 2 chambres. Vous bénéficierez d'un balcon de 9.5m2 d'une place de parking, d'un garage et d'une cave. ______ Pour plus de renseignements contactez nous au 02.44.36.01.21, ou venez nous rencontrer à l'agence de Croix de Vie, 93 Bd Georges Pompidou.
Notre algorithme analyse l'annonce pour estimer l'ampleur des travaux à prévoir.
Termes liés à la rénovation détectés dans l'annonce
DPE absent, peu de photos ou description courte
Cette analyse est automatique et indicative. Elle est basée sur le contenu de l'annonce et ne remplace pas un diagnostic professionnel sur place.
Connectez-vous pour utiliser l'analyse IA
Se connecterStatut
Disponible
Classe Énergie
Classe actuelle : A
Classe GES
Classe actuelle : A
Chargement de la carte...
Estimation indicative selon le niveau de travaux
Rénovation partielle : électricité, plomberie, isolation
Électricité aux normes, plomberie, isolation, menuiseries, chauffage, salle de bain
600-850 €/m²
385k €
±2%
401k €
Prix + Travaux + Notaire
Estimation indicative
Basée sur les barèmes moyens de rénovation par zone géographique. Le coût réel dépend de l'état du bien, de l'accessibilité du chantier et des choix de matériaux.
Fourchette calculée : prix/m² × surface × coefficient régional
Renseignez votre profil pour estimer vos aides à la rénovation.
Simulez la réduction d'impôt si vous mettez ce bien en location après rénovation.
Investissement estimé :
323 000 € + 46 400 € travaux = 369 400 €