





































Surface
173185 m²
Pièces
7
Chambres
4
Prix d'acquisition
540 000 €
3 €/m²
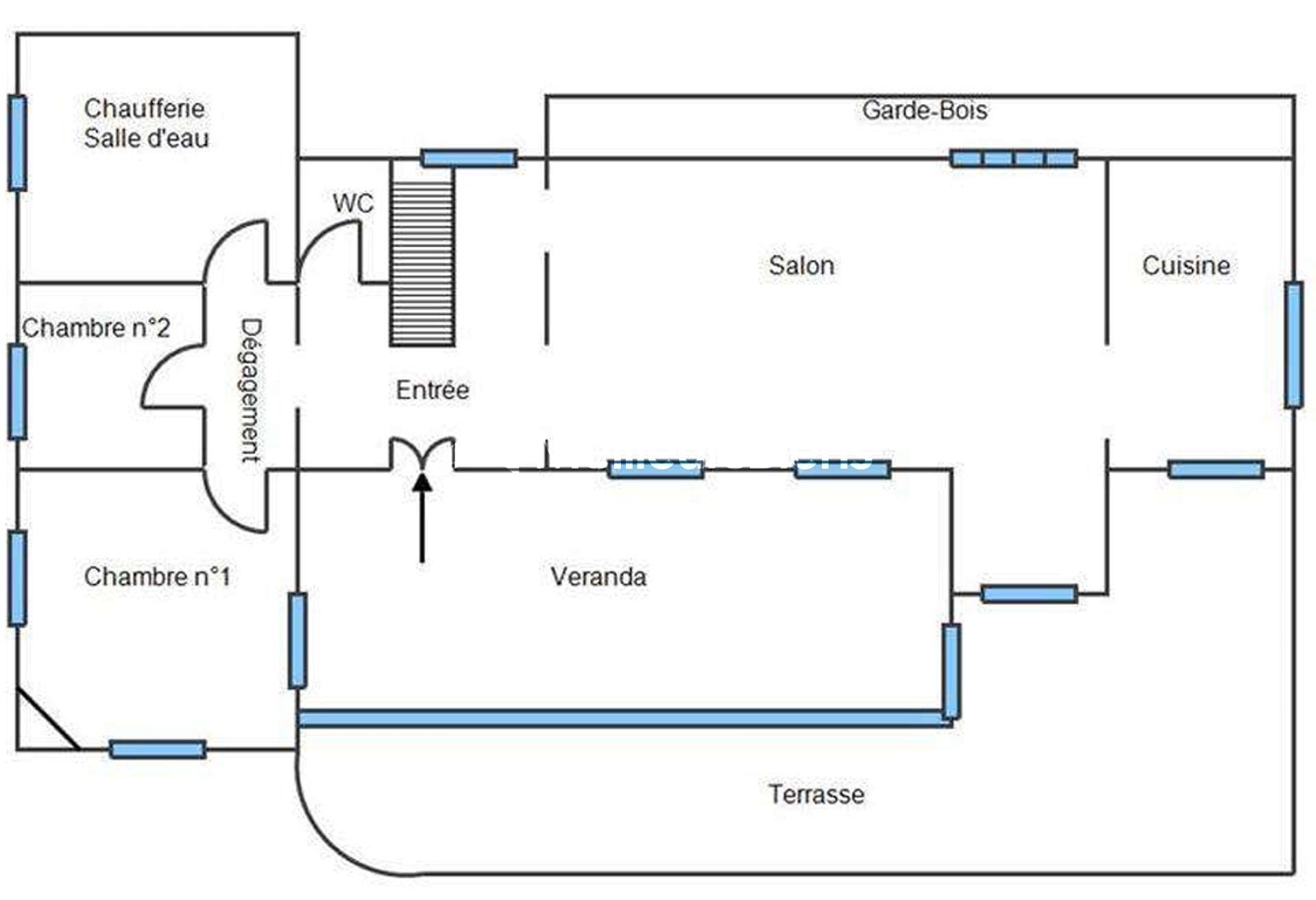
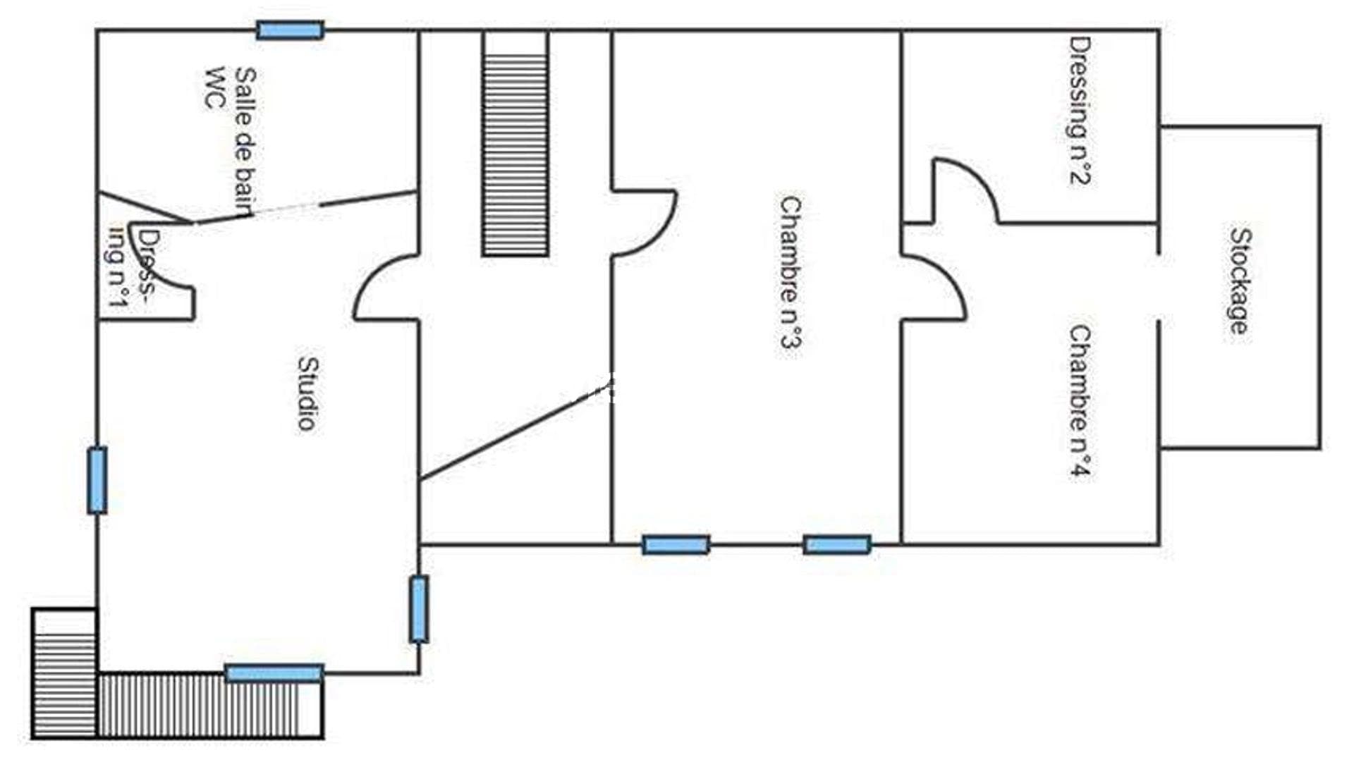
Située dans un environnement privilégié à Beynes, cette belle maison individuelle de 173 m² habitables (323 m² au sol) avec studio indépendant séduira les familles en quête d’espace, de lumière et de sérénité. Édifiée sur un magnifique terrain arboré de 2 017 m² exposé plein sud, sans vis-à-vis et offrant une vue dégagée, elle propose un cadre de vie paisible et verdoyant à seulement quelques minutes des commodités. Dès l’entrée, le plafond cathédrale crée un effet “waouh” et donne le ton des volumes généreux qui caractérisent la maison. Le double séjour de 43 m², baigné de lumière, s’ouvre naturellement sur une véranda de 19 m² prolongeant l’espace de vie, puis sur une superbe terrasse de 55 m² idéale pour les repas d’été et les moments en famille face au jardin paysager. Le rez-de-chaussée accueille deux chambres lumineuses ainsi qu’une salle d’eau avec espace buanderie. À l’étage, deux chambres disposant chacune de leur dressing garantissent confort et intimité, complétées par une agréable family room d’environ 20 m² parfaite pour un espace détente, salle de jeux ou télétravail. L’une des chambres bénéficie d’une entrée extérieure indépendante, offrant une solution idéale pour une profession libérale, un adolescent souhaitant plus d’autonomie ou un projet locatif. La configuration actuelle de 7 pièces permet de multiples aménagements selon vos besoins et vos projets de vie. Côté stationnement, la propriété dispose d’un carport semi-couvert pour deux véhicules, d’un atelier fermé d’environ 20 m² et de plusieurs places supplémentaires à l’avant de la maison. Appréciée pour son cadre naturel préservé, ses écoles, ses commerces, sa gare et son accès rapide aux grands axes, Beynes offre un équilibre parfait entre tranquillité et praticité. Une maison chaleureuse, lumineuse et pleine de potentiel, prête à accueillir votre prochaine histoire.<br>Les informations sur les risques auxquels ce bien est exposé sont disponibles sur le site Géorisques : www.georisques.gouv.fr<br>Prix de vente : 540 000 €<br>Honoraires charge vendeur<br>Contactez votre consultant megAgence : Isabelle ODINOT, Tél. : <span class="importDescriptionDecorator" data-type="phone">06 66 27 27 65</span>, E-mail : <span class="importDescriptionDecorator" data-type="email">isabelle.odinot@megagence.com</span> - EI - Agent commercial immatriculé au RSAC de VERSAILLES sous le numéro 819 350 877
Notre algorithme analyse l'annonce pour estimer l'ampleur des travaux à prévoir.
Termes liés à la rénovation détectés dans l'annonce
Un prix bas peut indiquer des travaux à prévoir
DPE absent, peu de photos ou description courte
Cette analyse est automatique et indicative. Elle est basée sur le contenu de l'annonce et ne remplace pas un diagnostic professionnel sur place.
Calculé à partir des transactions réelles (DVF), données bâtiment (BDNB) et DPE officiels (ADEME). En savoir plus →
Économie estimée
522 651 885 €
vs prix médian du secteur
Énergie estimée /an
12 122 950 € à 17 318 500 €
DPE classe F
Valeur marché du bien
523 191 885 €
au prix médian du secteur
Prix de cette annonce
3 €/m²
Prix médian du secteur
3 021 €/m²
Cette annonce est 100% moins chère que le prix médian du secteur · 6 ventes analysées
Classe
FConso. énergie
311
kWh/m²/an
GES
FChauffage
Fioul domestique
Isol. murs
insuffisante
Toiture
Non isolée
Connectez-vous pour utiliser l'analyse IA
Se connecterChargement de la carte...
Estimation indicative selon le niveau de travaux
Rénovation partielle : électricité, plomberie, isolation
Électricité aux normes, plomberie, isolation, menuiseries, chauffage, salle de bain
862-1208 €/m²
149.9M €
±17%
209.8M €
Prix + Travaux + Notaire
Estimation indicative
Basée sur les barèmes moyens de rénovation par zone géographique. Le coût réel dépend de l'état du bien, de l'accessibilité du chantier et des choix de matériaux.
Fourchette calculée : prix/m² × surface × coefficient régional
Renseignez votre profil pour estimer vos aides à la rénovation.
Simulez la réduction d'impôt si vous mettez ce bien en location après rénovation.
Investissement estimé :
540 000 € + 155 866 500 € travaux = 156 406 500 €
Autres biens à rénover en 78

Plaisir
336 000 €
Budget total:442k € - 475k €
Située à mi-chemin à pied entre commerces, écoles et la gare de Plaisir-Grignon (Montparnasse en 25 min), cette maison de 110 m² habitables édifiée sur un terrain d'environ 425 m² avec un beau potentiel vous propose au rez-de-chaussée un séjour double agrémenté d'une cheminée, une cuisine aménagée, un dégagement avec des placards, une chambre, un bureau, une salle de bains et un WC. A l'étage, 2 chambres, une salle de bains, un WC et un grenier. Vous disposerez d'un garage double et d'un stationnement privatif extérieur. Travaux de rénovation à prévoir. Les informations sur les risques auxquels ce bien est exposé sont disponibles sur le site Géorisques : www.georisques.gouv.fr
Mantes-la-Jolie
499 900 €
Budget total:638k € - 679k €
MAISON 2016 - DPE A - 137m² + POTENTIEL DE CONSTRUCTION (Permis Accordé) À vendre à Mantes-la-Jolie (78200), secteur recherché à proximité immédiate de la gare (Ligne J, N et futur RER E). Découvrez cette maison individuelle de 2016, alliant confort moderne, performances énergétiques exceptionnelles et un potentiel d'agrandissement unique. ✨ LES POINTS FORTS Performance Énergétique : Classée A (DPE 57 / GES 1). Consommation ultra-faible (600-870€/an). Revenus immédiats : Panneaux publicitaires rapportant 2 000 € / an (couvre quasiment la taxe foncière !). Potentiel Investisseur : Permis de construire DÉJÀ ACCORDÉ pour un immeuble accolé de 3 appartements T2 de 54m² (transformables en T3). DESCRIPTION DU BIEN (137m² habitables) Rez-de-chaussée : Entrée avec rangements. Vaste salon/séjour lumineux. Grande cuisine dînatoire aménagée et équipée. Grand cellier attenant (buanderie/stockage). WC avec lave-mains. À l’étage : 3 chambres, dont une suite parentale XL (divisible) avec sa propre salle de douche à l’italienne. Salle de bain principale et WC séparé. Balcon accessible depuis les chambres. Combles (Potentiel habitable +40m²) : Espace déjà prêt à être aménagé (électricité et conduits d'eau en attente). Idéal pour une 4ème suite parentale ou salle de jeux. Sous-sol & Extérieurs : Sous-sol total avec une très grande hauteur sous plafond (idéal atelier, salle de sport ou stockage). Terrain de 432m² (Zone Uba) avec grande terrasse et appentis. Jardin sans vis-à-vis. TECHNIQUE & FINANCES Construction 2016 sous garantie décennale. Pompe à chaleur Air/Eau + Ballon thermodynamique. Taxe foncière 2025 : 2 584 €. Prix : 500 000 € (Frais d'agence inclus). PHOTOS ET VIDÉO Visite virtuelle et photos supplémentaires disponibles ici : https://photos.app.goo.gl/vgHn2J2Hiy1XX5EbA Dossier complet et diagnostics sans aucune anomalie disponibles sur demande. Premier contact par messagerie ou téléphone. Agence Acquisimmo 14 rue de Colmar 78200 Mantes-la-Jolie

Montigny-le-Bretonneux
369 000 €
Budget total:475k € - 508k €
Maison de ville de 107m2, mitoyenne des 2 côtés, sur un terrain de 103m2. Avec grand garage de 27,71m2 + débarras de 3,81m2.<br>Située dans le secteur des Garennes (Guyancourt), proche des commerces, écoles et de la gare de Saint-Quentin-en-Yvelines.<br>Au rdc, une entrée spacieuse de 5,24m2 et un accès au garage avec espace buanderie, rangements, atelier. <br>Au 1er niveau, un espace de vie de 24,61m2 et une cuisine équipée indépendante de 10,65m2. Un WC indépendant.<br>Au 2ème niveau, l'espace nuit avec 3 chambres de 9,4 m², 9,98 m² et 12,5 m² avec rangements, une salle de bains avec WC de 3,76m2.<br>Au 3ème niveau, 1 grande pièce polyvalente de 18,01m2 (26,02m2 au sol) pouvant devenir salle de jeux, chambre d'amis et avec possibilité de créer une deuxième salle d'eau.<br>A l'extérieur, jardin à l'abri des regards grâce à l'aménagement paysager. L'accès au jardin se fait par le garage.<br>1 place de parking extérieur.<br>Merci de m'appeler pour recevoir la visite virtuelle.<br>Une visite virtuelle 3D 360° est disponible sur notre site internet <span class="importDescriptionDecorator" data-url="www.immojuste.fr" data-type="basicUrl">www.immojuste.fr</span>.<br>Annonce publiée sous la responsabilité éditoriale de l'agent commercial Joecelyn Seminario enregistré au RSAC de Versailles n°992 917 401 <span class="importDescriptionDecorator" data-type="email">j.seminario@immojuste.fr.</span> Téléphonez au <span class="importDescriptionDecorator" data-type="phone">06.87.72.80.40</span><br>Dans une copropriété de 96 lots. Aucune procédure n'est en cours. Classe énergie D, Classe climat B Montant moyen estimé des dépenses annuelles d'énergie pour un usage standard, établi à partir des prix de l'énergie de l'année 2025 : entre 1714.00 et 2319.00 €. Les informations sur les risques auxquels ce bien est exposé sont disponibles sur le site Géorisques : georisques.gouv.fr. <br>Votre conseiller IMMO JUSTE : Joecelyn SEMINARIO ERAZO<br>Agent commercial (Entreprise individuelle) <br> RSAC 992 917 401 de Versailles

Fontenay Le Fleury
346 500 €
Budget total:415k € - 433k €
Dans un quartier recherché, découvrez cette charmante maison de plain-pied offrant un beau potentiel d'évolution. Elle se compose de : un sas d'entrée, une entrée, un séjour lumineux, une cuisine donnant directement sur le jardin, un dégagement desservant deux chambres dont une avec placard, une salle de douche et un toilette séparé . À cela s'ajoutent : un studio indépendant de 28m² idéal pour recevoir, télétravailler, générer un revenu locatif ou exercer une profession libérale . De plus : un garage et des abris de jardin. Possibilité de surélévation, offrant un fort potentiel d'agrandissement. Des travaux sont à prévoir, idéal pour personnaliser selon vos envies. Contactez nous au 01.30.07.10.40.