













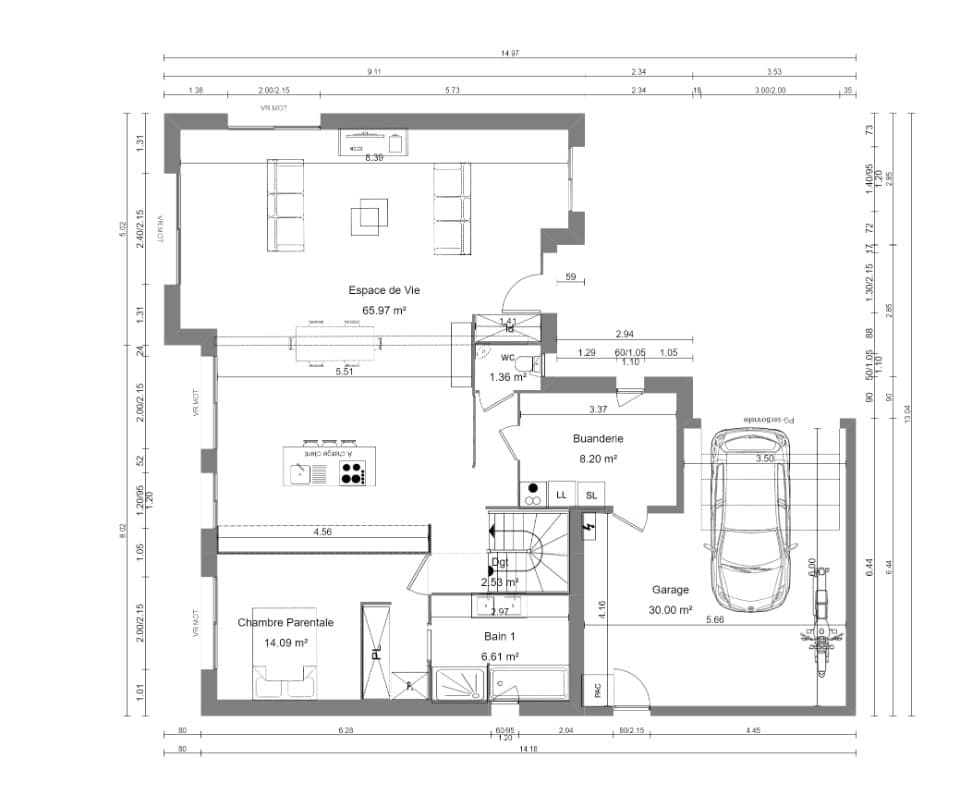
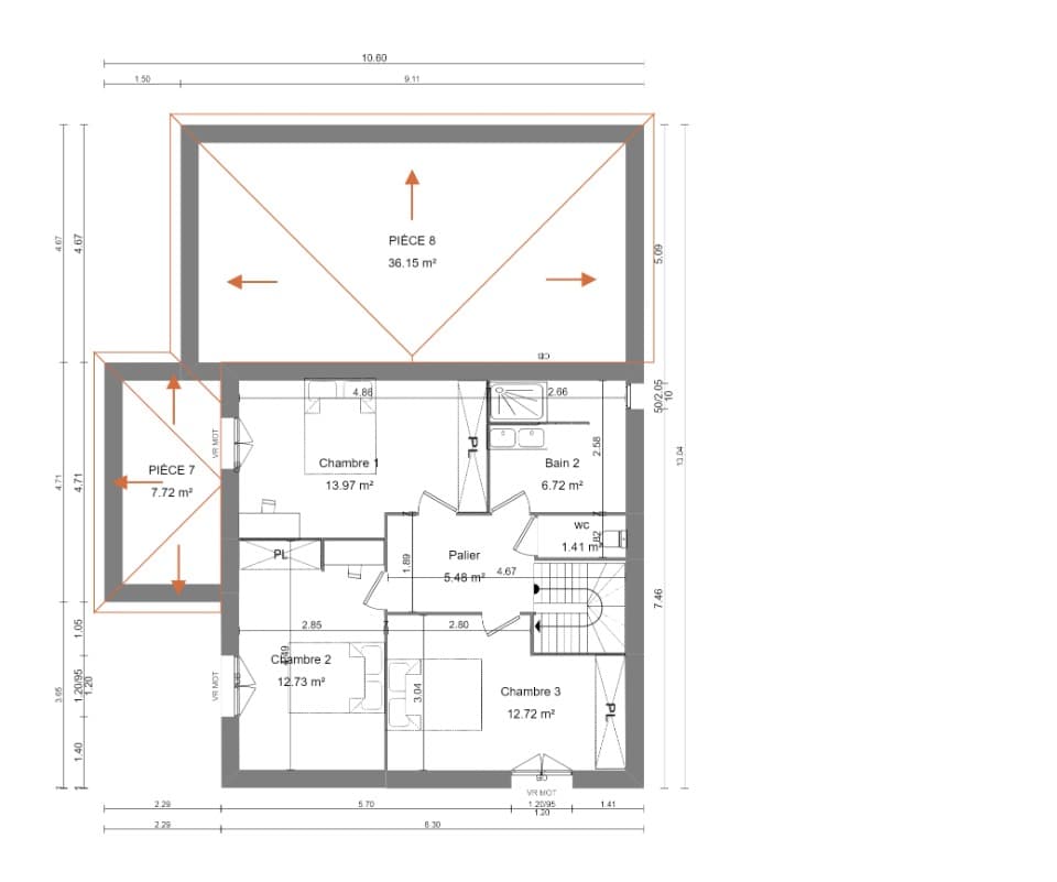
Surface
140 m²
Pièces
6
Chambres
4
Prix d'acquisition
NaN €
NaNBayeux : maison de 6 pièces (140 m²) en vente<br>Proche de Caen - À découvrir à Bayeux (14400) : maison neuve 6 pièces en vente, 2 niveaux, 140 m² sur 303 m² de terrain. Elle compte quatre chambres, une cuisine et deux salles de bains.<br>À proximité : gare (Bayeux), établissements scolaires, crèche, marchés, bibliothèque, commerces, boulangeries, supermarché, épiceries et bureau de poste. <br>Cette maison de 6 pièces est à vendre pour la somme de 286 000 €.<br>Prenez contact avec notre agence (Emilie HUE : <span class="importDescriptionDecorator" data-type="phone">06-29-81-46-66</span>) pour toute information sur la maison.<br>Annonce proposée par un Agent Commercial Partenaire. Terrain proposé par un partenaire foncier selon disponibilités et autorisation de publicité au prix de 56 000 €. Hors droit d'enregistrement et frais de notaire. Terrain + Maison proposés au prix de 286 000 € (Hors branchements et raccordements, papiers peints, peintures, revêtement de sol dans les chambres. Tarif modifiable sans préavis). Etiquette énergie : A. Différents modèles disponibles pour ce terrain. Assurances et garanties du constructeur (RC professionnelle, décennale, dommage ouvrage, garantie de remboursement de l'acompte, livraison à prix et délai convenu) : <span class="importDescriptionDecorator" data-url="https://www.maisons-france-confort.fr/mentions-legales/" data-type="unhandledUrl">https://www.maisons-france-confort.fr/mentions-legales/</span>. HEXAOM Services est enregistré auprès de l'ORIAS en tant que Courtier en financement, Niveau 1, sous le numéro 14001345.
Notre algorithme analyse l'annonce pour estimer l'ampleur des travaux à prévoir.
Basé sur le DPE (Diagnostic de Performance Énergétique)
DPE absent, peu de photos ou description courte
Cette analyse est automatique et indicative. Elle est basée sur le contenu de l'annonce et ne remplace pas un diagnostic professionnel sur place.
Calculé à partir des transactions réelles (DVF), données bâtiment (BDNB) et DPE officiels (ADEME). En savoir plus →
Énergie estimée /an
9 800 € à 14 000 €
DPE classe F
Classe
FConso. énergie
329
kWh/m²/an
GES
FChauffage
Fioul domestique
Isol. murs
insuffisante
Toiture
Isolée
Connectez-vous pour utiliser l'analyse IA
Se connecterStatut
Disponible
Classe Énergie
Classe actuelle : F
Classe GES
Classe actuelle : F
Ce bien est classé DPE F — voici ce que vous gagnerez en rénovant
Actuel
Cible
3 542 €
économie / an
295 €/mois
+13%
plus-value
+NaN €
0 ans
retour invest.
NaN € /10 ans
Estimations basées sur les consommations moyennes par classe DPE et les études Notaires de France sur l'impact du DPE sur les prix.
Chargement de la carte...
Estimation indicative selon le niveau de travaux
Rénovation partielle : électricité, plomberie, isolation
Électricité aux normes, plomberie, isolation, menuiseries, chauffage, salle de bain
690-977 €/m²
286000,96600NaN €
±NaN%
286000,136780NaN €
Prix + Travaux + Notaire
Estimation indicative
Basée sur les barèmes moyens de rénovation par zone géographique. Le coût réel dépend de l'état du bien, de l'accessibilité du chantier et des choix de matériaux.
Fourchette calculée : prix/m² × surface × coefficient régional
Renseignez votre profil pour estimer vos aides à la rénovation.
Simulez la réduction d'impôt si vous mettez ce bien en location après rénovation.
Investissement estimé :
NaN € + 101 500 € travaux = NaN €
Économie/an
3 542 €
295 €/mois
Plus-value estimée
+NaN €
+13%
Passoire thermique (DPE F)
Interdiction de location depuis/à partir de 2028
Autres biens à rénover en 14

Vierville-sur-Mer
212 000 €
Budget total:285k € - 309k €
Votre cabinet ADDE Immobilier vous propose à la vente :<br> <br>Situé dans un environnement privilégié à proximité immédiate de la mer, ce pavillon des années 1970 offre un beau potentiel après rénovation.<br> <br>La maison comprend au rez-de-chaussée : une entrée, un séjour lumineux, une cuisine, deux chambres, une salle d'eau et un WC. Une véranda vient compléter l'espace de vie.<br> <br>Le bien dispose également d'un sous-sol complet comprenant deux pièces aménagées offrant diverses possibilités d'usage (bureau, chambres d'appoint, espace loisirs...).<br> <br>L'ensemble est implanté sur un terrain d'environ 700 m2.<br> <br>Travaux de rénovation à prévoir, idéal pour un projet de résidence secondaire en bord de mer ou pour de la location saisonnière.<br> <br> Emplacement recherché, à quelques pas du littoral et avec vue sur la mer.<br> <br> Ce bien correspond à votre projet ? Contactez-nous sans tarder au <span class="importDescriptionDecorator" data-type="phone"><span class="importDescriptionDecorator" data-type="phone">02.31.92.02.41</span></span>.<br> <br> Les informations sur les risques auxquels ce bien est exposé sont disponibles sur le site Géorisques : www.georisques.gouv.fr<br> <br> ADDE Immobilier<br> 12 rue Saint Malo<br> 14400 BAYEUX<br> <span class="importDescriptionDecorator" data-type="phone"><span class="importDescriptionDecorator" data-type="phone">02.31.92.02.41</span></span><br> <span class="importDescriptionDecorator" data-url="www.adde-immo.com" data-type="basicUrl">www.adde-immo.com</span>

Amblie
NaN €
Budget total:305000,84000NaN € - 305000,119000NaN €
VENTE d'une maison de 6 pièces (140 m²) à Creully<br>Idéalement située - Maison neuve 6 pièces en vente à Creully (14480) avec 2 niveaux, une surface de 140 m² sur un terrain de 445 m². Elle comporte quatre chambres, une cuisine et deux salles de bains.<br>À dix minutes : gares (Audrieu et Bretteville-Norrey), établissements scolaires, bibliothèque, boulangeries, commerces, bureau de poste et supérette. Nationale N13 à 7 km. Caen à 17 km.<br>Cette maison de 6 pièces est à vendre pour la somme de 305 000 €.<br>Prenez contact avec Emilie HUE pour toute question sur la maison, sur les modalités de vente ou sur les démarches à suivre. Faites de vos projets immobiliers une réalité avec Maisons France Confort Bayeux.<br>Annonce proposée par un Agent Commercial Partenaire. Terrain proposé par un partenaire foncier selon disponibilités et autorisation de publicité au prix de 75 000 €. Hors droit d'enregistrement et frais de notaire. Terrain + Maison proposés au prix de 305 000 € (Hors branchements et raccordements, papiers peints, peintures, revêtement de sol dans les chambres. Tarif modifiable sans préavis). Etiquette énergie : A. Différents modèles disponibles pour ce terrain. Assurances et garanties du constructeur (RC professionnelle, décennale, dommage ouvrage, garantie de remboursement de l'acompte, livraison à prix et délai convenu) : <span class="importDescriptionDecorator" data-url="https://www.maisons-france-confort.fr/mentions-legales/" data-type="unhandledUrl">https://www.maisons-france-confort.fr/mentions-legales/</span>. HEXAOM Services est enregistré auprès de l'ORIAS en tant que Courtier en financement, Niveau 1, sous le numéro 14001345.

Vire Normandie
205 806 €
Budget total:309k € - 346k €
Grande propriété de 5 chambres située dans un hameau près de Vire, en Normandie.<br>Veuillez demander le lien ver - Une grande propriété moderne et confortable, idéale pour une famille qui s'agrandit, avec d'excellentes infrastructures dans la région de Vire pour tous les âges. Une propriété multigénérationnelle offrant un accès exceptionnel à des installations de loisirs tout en étant rurale, pratique et équipée d'un système de chauffage dernier cri. <br>Quelques travaux sont à prévoir pour terminer la salle de bains du 1er étage, mais rien de trop difficile pour un bricoleur. Cette propriété offre un excellent rapport qualité-prix à l'ère des économies d'énergie, puisqu'elle bénéficie d'une cote C.<br>

Vaucelles
NaN €
Budget total:213300,51000NaN € - 213300,72250NaN €
VENTE : maison T5 (85 m²) à Vaucelles<br>Idéalement située - En vente à Vaucelles (14400) : maison neuve 5 pièces de 85 m² sur un terrain de 413 m². Elle est composée de trois chambres, d'une cuisine et d'une salle de bains.<br>À dix minutes : gare (Bayeux), supermarché et commerce. Nationale N13 à 2 km. Manche à 7 km. Caen à 28 km.<br>Cette maison de 5 pièces est à vendre pour la somme de 213 300 €.<br>N'hésitez pas à prendre contact avec notre agence pour obtenir de plus amples informations sur la maison.<br>Annonce proposée par un Agent Commercial Partenaire. Terrain proposé par un partenaire foncier selon disponibilités et autorisation de publicité au prix de 68 300 €. Hors droit d'enregistrement et frais de notaire. Terrain + Maison proposés au prix de 213 300 € (Hors branchements et raccordements, papiers peints, peintures, revêtement de sol dans les chambres. Tarif modifiable sans préavis). Etiquette énergie : A. Différents modèles disponibles pour ce terrain. Assurances et garanties du constructeur (RC professionnelle, décennale, dommage ouvrage, garantie de remboursement de l'acompte, livraison à prix et délai convenu) : <span class="importDescriptionDecorator" data-url="https://www.maisons-france-confort.fr/mentions-legales/" data-type="unhandledUrl">https://www.maisons-france-confort.fr/mentions-legales/</span>. HEXAOM Services est enregistré auprès de l'ORIAS en tant que Courtier en financement, Niveau 1, sous le numéro 14001345.